Verkocht:De Kurver 23, 5971 LD Grubbenvorst - Foto
Verkocht
+25

De Kurver 23 5971 LD Grubbenvorst

  • Woonhuis
  • 6 kamers
  • 4 slaapkamers
  • 1 badkamer
  • Bouwjaar 1990
  • 308 m² perceeloppervlakte
  • 139 m² gebruiksoppervlakte
  • A Energielabel A

Beschrijving

Op loopafstand van het centrum van Grubbenvorst ligt deze mooie 2-onder een kap woning met eigen oprit en garage. De woning ligt in een kindvriendelijke buurt.

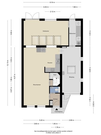
Entree:
• Toegang tot de woonkamer
• Toegang tot het toilet
• Meterkast
• Circa 2.5 m2 groot

Woonkamer:
• Tegelvloer met vloerverwarming
• Half open keuken
• Toegang tot de eetkamer
• Vanuit de eetkamer toegang tot de bijkeuken
• Circa 51 m2 groot

Keuken:
• L vormige keuken
• Gas kookplaat
• Afzuigkap
• Vaatwasser
• Koelkast
• Combi oven-magnetron
• Aparte oven
• Toegang tot de garage
• Circa 7.5 m2

Tuin:
• Gelegen op het noorden
• Met houten tuinhuis
• Grondwaterput
• Circa 170 m2 groot

Garage:
• Aangebouwde stenen garage
• Voorzien van water en elektra
• Circa 17.5 m2 groot

1e verdieping:
• Voorzien van laminaatvloer
• Overloop geeft toegang tot 3 slaapkamers, badkamer en vaste trap naar de zolder
• Slaapkamer zijn respectievelijk 8.5 m2, 11 m2 en 12 m2, groot
• Badkamer is voorzien van een inloopdouche, wastafel met meubel en toilet.

Zolder:
• Bereikbaar via vaste trap
• 4e slaapkamer met Velux dakraam
• Voorzien van tapijttegels
• CV-ketel uit 2020
• Circa 18.5 m2 groot

Algemeen:
• Woonoppervlakte 138.5 m2
• Overige inpandige ruimte 17.7 m2
• Gebouw gebonden buitenruimte 3.1 m2.
• Perceeloppervlakte 308 m2
• Inhoud 553.2 m3
• Bouwjaar 1990
• Garage
• Eigen oprit
• Heeft 15 zonnepanelen
• Vloerverwarming in de woonkamer en badkamer
• Houten kozijnen met gedeeltelijk HR++ beglazing
• Energielabel A
• Benedenverdieping is afgelopen zomer nog geschilderd
• Plat dak van de aanbouw is afgelopen zomer vernieuwd

Kaart

Kenmerken

Overdracht

Referentienummer
00019
Vraagprijs
€ 398.000,- k.k.
Elektra
€ 69,-
Gas
€ 160,-
Water
€ 30,-
Status
Verkocht
Aanvaarding
In overleg
Aangeboden sinds
Woensdag 8 oktober 2025
Laatste wijziging
Vrijdag 7 november 2025

Bouw

Type object
Woonhuis, eengezinswoning, twee onder een kap woning
Soort bouw
Bestaande bouw
Bouwperiode
1990
Dakbedekking
Dakpannen
Type dak
Zadeldak
Isolatievormen
Dakisolatie
Grotendeels dubbel glas
HR-glas
Muurisolatie
Vloerisolatie

Oppervlaktes en inhoud

Perceeloppervlakte
308 m²
Woonoppervlakte
138,5 m²
Woonkameroppervlakte
51,59 m²
Keukenoppervlakte
7,42 m²
Inhoud
553 m³
Oppervlakte overige inpandige ruimten
17,7 m²
Oppervlakte gebouwgebonden buitenruimte
3,1 m²

Indeling

Aantal bouwlagen
3
Aantal kamers
6 (waarvan 4 slaapkamers)
Aantal badkamers
1 (en 1 apart toilet)

Tuin

Type
Voortuin
Oriëntering
Zuiden
Staat
Prachtig aangelegd
Tuin 2 - Type
Achtertuin
Tuin 2 - Oriëntering
Noorden
Tuin 2 - Staat
Goed onderhouden

Energieverbruik

Energielabel
A

CV ketel

CV ketel
Hr-107
Warmtebron
Gas
Bouwjaar
2020
Combiketel
Ja
Eigendom
Eigendom

Uitrusting

Aantal parkeerplaatsen
2
Warm water
CV-ketel
Verwarmingssysteem
Centrale verwarming
Vloerverwarming (gedeeltelijk)
Ventilatie methode
Mechanische ventilatie
Badkamervoorzieningen
Inloopdouche
Toilet
Vloerverwarming
Wastafel
Wastafelmeubel
Parkeergelegenheid
Aangebouwde stenen garage
Heeft kabel-tv
Ja
Glasvezelaansluiting aanwezig
Ja
Tuin aanwezig
Ja
Heeft een garage
Ja
Beschikt over een internetverbinding
Ja
Heeft rolluiken
Ja
Heeft schuur/berging
Ja
Heeft een dakraam
Ja
Heeft zonnepanelen
Ja
Heeft ventilatie
Ja

Kadastrale gegevens

Kadastrale aanduiding
Horst Aan De Maas C 5478
Perceeloppervlakte
308 m²
Omvang
Geheel perceel
Eigendomsituatie
Eigen grond

Brochure(s) en overige bijlagen

De Kurver 23, 5971 LD GRUBBENVORST (1) Download