Verkocht:Clapvaeren 18, 5961 LM Horst - Foto
Verkocht
+33

Clapvaeren 18 5961 LM Horst

  • Woonhuis
  • 5 kamers
  • 4 slaapkamers
  • 1 badkamers
  • Bouwjaar 1985
  • 175 m² perceeloppervlakte
  • 122 m² gebruiksoppervlakte
  • A Energielabel A

Beschrijving

In een rustig gelegen buurt ligt deze twee onder een kap met garage. Ideaal voor starters, maar ook zeer geschikt voor een gezin.

Indeling:

Begane grond:

Hal:
• Meterkast
• Toilet
• Trapopgang
• Toegang tot woonkamer

Woonkamer:
• Oppervlakte ca 34.4 m2
• Gehele woonkamer is voorzien van een eiken vloer
• Wanden voorzien van stucwerk

Half open keuken:
• Oppervlakte ca 6.15 m2
Voorzien van:

• Inductie kookplaat

• Afzuigkap

• Koelkast
• Combi oven magnetron (alleen de oven werkt)
• Vaatwasser

• Oppervlakte garage ca.18.5 m2.

• Serre van ca. 19.5 m2.

Achtertuin:
• Gelegen op het zuiden
• Ca. 7 meter diep
• Ca. 6 meter breed

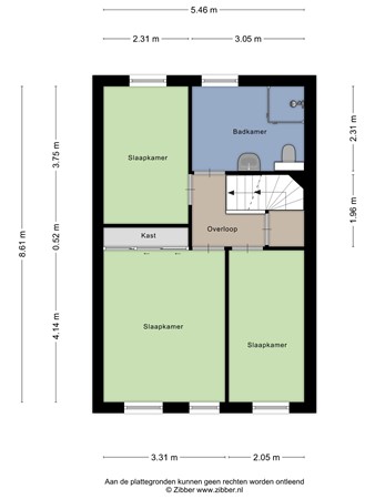
1e verdieping:
• Bereikbaar via trap in de hal
• Overloop verschaft toegang tot 3 slaapkamer en de badkamer
• Slaapkamers zijn respectievelijk 8.5 m2 en 15.4 m2 groot
• Badkamer inloop douche, wastafel en toilet

Zolder:
• Bereikbaar via vast trap
• Nefit hybride Cv ketel (2022) en zonneboiler
• Aansluiting voor de wasmachine
• Slaapkamer

Algemeen:

• Woonoppervlakte 121,6 m2
• Overige inpandige ruimte 18,9 m2
• Gebouw gebonden buitenruimte 36,8 m2.
• Perceeloppervlakte 220,8 m2
• Bouwjaar 1985
• Kunststof kozijnen met dubbel triple glas
• CV ketel van het merk Nefit
• 11 Zonnepanelen

Kaart

Kenmerken

Overdracht

Referentienummer
00044
Vraagprijs
€ 400.000,- k.k.
Status
Verkocht
Aanvaarding
In overleg
Aangeboden sinds
Vrijdag 23 mei 2025
Laatste wijziging
Donderdag 24 juli 2025

Bouw

Type object
Woonhuis, eengezinswoning, geschakelde twee onder een kap woning
Soort bouw
Bestaande bouw
Bouwperiode
1985
Dakbedekking
Bitumen
Dakpannen
Type dak
Zadeldak
Isolatievormen
Dakisolatie
Driedubbel glas
Grotendeels dubbel glas
Muurisolatie
Vloerisolatie

Oppervlaktes en inhoud

Perceeloppervlakte
175 m²
Woonoppervlakte
121,6 m²
Woonkameroppervlakte
34,3 m²
Keukenoppervlakte
6,14 m²
Inhoud
498 m³
Oppervlakte overige inpandige ruimten
18,9 m²
Oppervlakte gebouwgebonden buitenruimte
36,8 m²

Indeling

Aantal bouwlagen
3
Aantal kamers
5 (waarvan 4 slaapkamers)
Aantal badkamers
1 (en 1 apart toilet)

Tuin

Type
Voortuin
Oriëntering
Noorden
Staat
Normaal
Tuin 2 - Type
Achtertuin
Tuin 2 - Oriëntering
Zuiden
Tuin 2 - Heeft een achterom
Ja
Tuin 2 - Staat
Normaal

Energieverbruik

Energielabel
A

CV ketel

CV ketel
Nefit hybride
Bouwjaar
2022
Eigendom
Eigendom

Uitrusting

Aantal parkeerplaatsen
2
Aantal overdekte parkeerplaatsen
1
Warm water
CV-ketel
Verwarmingssysteem
Centrale verwarming
Ventilatie methode
Mechanische ventilatie
Keukenvoorzieningen
Inbouwapparatuur
Badkamervoorzieningen
Douche
Toilet
Wastafel
Parkeergelegenheid
Aangebouwde stenen garage
Heeft kabel-tv
Ja
Glasvezelaansluiting aanwezig
Ja
Tuin aanwezig
Ja
Heeft een garage
Ja
Heeft rolluiken
Ja
Heeft een dakraam
Ja
Heeft zonwering
Ja
Heeft zonnepanelen
Ja
Heeft ventilatie
Ja

Kadastrale gegevens

Kadastrale aanduiding
Horst aan de Maas R 826
Perceeloppervlakte
175 m²
Omvang
Geheel perceel
Eigendomsituatie
Eigen grond

Brochure(s) en overige bijlagen

Clapvaeren 18, 5961 LM HORST (1) Download